Imagine 99

Închiriere apartament elegant 5 camere in Cartierul Francez Fit4You Le Club

ID: P224457 Bucuresti, Herastrau 154
2.600€
Descriere
AV Real Estate va propune spre închiriere acest apartament elegant de 5 camere în Cartierul Francez.pozitionat lângă Fit4You Le Club, la câțiva pași de Parcul Herăstrău.

Caracteristici generale
• UTILITATI INCLUSE in prețul chiriei
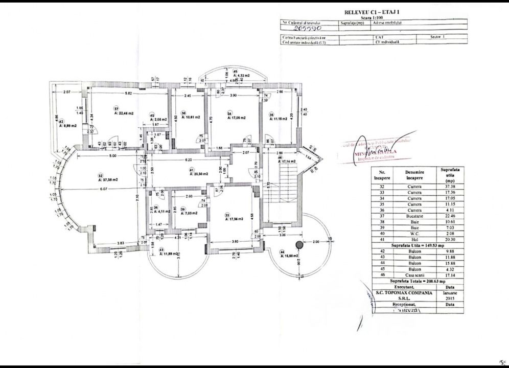
• Suprafață utilă: 150 mp
• Suprafață terase: 60 mp (terase generoase la fiecare cameră)
• Compartimentare: 5 camere (2 dormitoare + living + dressing + cameră depozitare)
• Număr băi: 3 (funcționale, moderne)

Compartimentare & Confort
• Living spațios, luminat natural, cu acces direct pe terasă
• 2 dormitoare confortabile, fiecare cu balcon/terasă proprie
• Dressing separat, ideal pentru organizare
• Cameră de depozitare suplimentară
• 3 băi: una matrimonială, una pentru zona de zi și una pentru oaspeți
• Terase total 60 mp, perfecte pentru relaxare, mic dejun în aer liber sau amenajare cu plante

Mobilare & dotări
• Apartamentul este parțial mobilat
• Poate fi mobilat complet în funcție de preferințele viitorului chiriaș
• Se acceptă animale de companie mici
• Finisaje moderne, spații largi și bine compartimentate

Locație premium
• Situat în Cartierul Francez, una dintre cele mai căutate și exclusiviste zone ale Capitalei
• 3 minute de mers până la Parcul Herăstrău
• În apropiere de Fit4You, cafenele, restaurante, centre wellness și zone verzi
• Acces rapid către zonele de business, mall-uri și transport

Preț & condiții
• Chirie: 2.600 € / lună
• Toate utilitățile sunt incluse în preț
• Condiții: 1 lună avans + 1 lună chirie
• Se preferă chiriași pe termen lung


Pentru detalii si vizionari, nu ezitați sa ma contactați.

Andreea Vasui
AV Real Estate
0762439401
Caracteristici
  • ID:P224457
  • Nr. camere:5
  • Nr. dormitoare:2
  • S. utila:150.00 mp
  • S. balcoane:60.00 mp
  • S. utila totala:209.00 mp
  • S. construita:176.00 mp
  • Comp.:Decomandat
  • Confort:Lux
  • Etaj:Etaj 1
  • Nr. bucatarii:1
  • Nr. bai:3
  • Nr. balcoane:4
  • Nr. parcari:1
  • An constructie:2005
  • Structura:Beton
  • Tip imobil:Bloc
  • Regim inaltime:P+2
  • Orientare:Sud-Est
  • Clasa energetica:A
Specificatii
Curent
Apa
Gaz
Telefon
Acces internet
Fibra optica
Utilitati in zona
Centrala imobil
Calorifere
Aer conditionat
Bloc izolat termic
Vopsea lavabila
Var
Faianta
Parchet
Gresie
Mocheta
Ferestre Aluminiu
Usa intrare Metal
Usa interior Celulare
Usa interior Lemn
Terasa
Wc serviciu
Debara
Dressing
Bucatarie Mobilata
Bucatarie Utilata
Contor gaz
Interfon
Localizare
Andreea Vasui
Founder & CEO - Real Estate Consultant
Esti interesat de aceasta proprietate ?
Proprietati similare
0% comision De inchiriat Imagine 300
Penthouse exclusivist 4 camere | 156 mp | Herastrau | Prima inchiriere
Bucuresti, Herastrau 2.790€
4 camere 2 bai 156mp